Villa til salgs til Punta La Mona (Almuñécar), 2.100.000 € (Ref. 4892)
A estrenar
Vistas al mar
Egenskaper
Generell
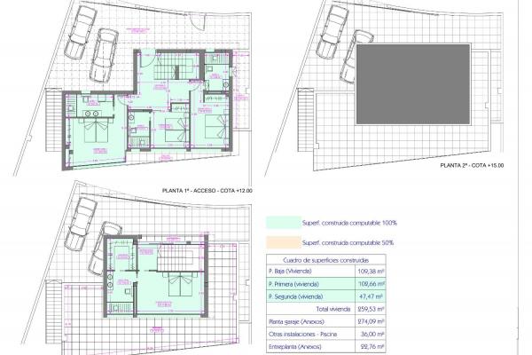
Areal
Status
Areal
Status
Utstyr
Tjenester
Tjenester
Kvaliteter
Sikkerhet
Sikkerhet
Pris
2.100.000 €
Energisertifikat
|
CALIFICACIÓN ENERGÉTICA
|
Consumo energía kW h / m2 año |
Emisiones CO2 kg CO2 / m2 año |
|---|---|---|
| A | 0 | 0 |
| B | ||
| C | ||
| D | ||
| E | ||
| F | ||
| G |
























































