Parcela en venta en Torrox Park, 325.000 € (Ref. 4879)
Descripción
Exclusiva parcela con proyecto de villa independiente y piscina, situada en la codiciada zona de Torrox Park, en una de sus ubicaciones más privilegiadas. Su excepcional orientación suroeste ofrece una luminosidad incomparable durante todo el día, acompañada de vistas al mar y a las montañas.
La propiedad dispone de estructura ya ejecutada y un cuidado proyecto arquitectónico concebido para crear una residencia sofisticada y contemporánea.
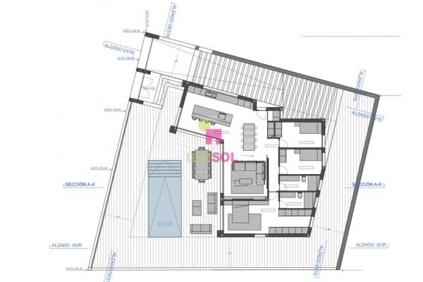
La vivienda ha sido diseñada para ofrecer amplitud, confort y fluidez en sus espacios, integrando una cocina abierta con un espacioso salón-comedor, tres dormitorios dobles —incluyendo una suite principal con vestidor—, dos baños y una estancia adicional ideal como lavadero o área de servicio.
El exterior ha sido pensado para disfrutar plenamente del estilo de vida mediterráneo, con amplias terrazas que envuelven la vivienda, una atractiva piscina de 7 x 3 metros y una distinguida zona apergolada con capacidad para hasta tres vehículos.
Ubicada en un entorno tranquilo y selecto, la propiedad combina privacidad y excelente conexión con todos los servicios, comercios y zonas de ocio, posicionándose como una inversión de alto valor tanto para residencia habitual como para segunda vivienda.
La parcela cuenta con suministros de luz y agua, además de licencia de obra vigente, lo que permite continuar el proyecto de forma inmediata.
Una oportunidad excepcional para materializar una villa de diseño en un enclave privilegiado de la Costa del Sol.
Características
Superficies
Estado
Precio
325.000 €
Rebajado 10,96%
Situación y Entorno
Torrox Park | Torrox Costa














